日本久久久久久黄台网站-韩日伦理网络视频免费在线观看-欧洲日本韩国国产在线一区-不要啊啊啊啊在线观看观看

歡迎光臨浙江庫華冷庫安裝公司!承接冷庫設計冷庫建造等冷庫工程服務!
全國免費咨詢熱線:400-8269-609
冷庫設計安裝一體化服務
聯系我們
免費咨詢熱線:400-8269-609

聯系人:業務部 高經理

24小時咨詢:15355424256

電話:0571-87139668

傳真:0571-87139629

地址:杭州市上城區九和路九和人家3幢2樓

蕭山一醫藥冷庫建造安裝過程

時間:2013-11-27編輯:瀏覽:

醫藥冷庫安裝具體操作流程:

冷庫項目安裝具體操作五步曲:項目承包—項目設計—項目采購—項目施工—項目管理,下面庫華制冷為您詳細講解五步曲的具體細節。

庫華制冷項目承包:

分為五個小細節,從冷庫費用控制—冷庫進度控制—冷庫質量控制—冷庫合同管理—冷庫安裝人員組織與協調如下圖所示:

庫華制冷項目設計:

關于冷庫設計建造項目,您或許全部了解或許了解一部份,也許您正在找一家二家甚至更多的廠商聯系,聽到不同的方案和價格,把有限的時間花在眾多的電話郵件甚至會見約談過程中,庫華制冷提供的是一站式服務,只要告訴我們;

庫華:需建造冷庫的尺寸:長寬高單位米;

第二:需建造冷庫的存貨設計溫度:深度冷凍-25℃以下冷凍冷藏-18℃保鮮冷藏0℃保鮮2℃保鮮10℃;

第三:需建造冷庫的總存貨量:20噸50噸100噸500噸1000噸5000噸

第四:需建造冷庫的日出入貨量:占總庫2%5%8%10%20%

第五:需建造冷庫庫溫的庫華制冷小冷卻時間:6H8H10H12H24H

第六:需建造冷庫項目制冷機組的品牌廠家:艾默生谷輪德國比澤爾西克大連三洋(日本)法國美優樂法國泰康日本日立意大利富士豪美國開利意大利都靈

第七:需建造冷庫項目設備國產還是進口;

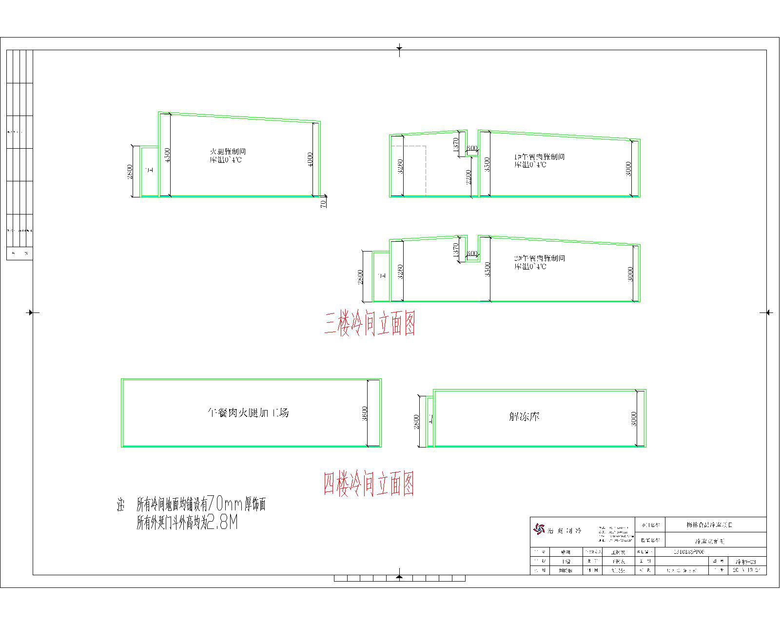
如圖所示:

此圖是庫華制冷給某醫藥冷庫項目設計的冷庫方案圖紙

庫華制冷項目采購:

庫華采購優勢:我們與國內外好的的制冷設備廠家有著深入的合作,引進優良的技術和產品,長期穩定的采購合作模式,使得我們更加有著優勢為客戶提供高性價比的產品。以庫華的品牌和平臺,一體式的集中采購甄選,在價格和設備質量問題上比客戶自身采購更加有著優勢。

1.供應商管理

庫華專業的設備工程人員,選配各種制冷設備,從眾多供應商中選擇適合客戶的產品,為客戶節省投資并達到項目的要求。庫華對供應商進行一一考核篩選,從產品質量、供應能力、售后服務、價格因素等方面綜合考慮我們的供應商團隊。

2.采購其管

項目合作簽約---制定采購計劃---供應商生產---品質管理---交期催貨---物流跟蹤---交付使用---售后服務。

如圖所示:

庫華制冷項目施工:

庫華一直以高效的團隊執行力引導企業正常發展,團隊分工分明,專人專職,愛崗敬業,全體員工認真在各自的崗位上,為整個庫華的發展,為每一個合作的項目,認真仔細,高效嚴格的默默貢獻著自已的力量,水滴成川洋之海,力集庫華而成果。庫華的發展,隨著中國經濟形式的逐步高漲而不斷飛躍前進。庫華的執行力量始終帶領著庫華的全體員工,向著美好的明天,不斷前進。

下面是我司庫華制冷給蕭山某醫藥冷庫現場安裝實例:

冷庫庫場,安裝師傅們準備卸貨

此醫藥冷庫建在一所商務寫字樓13層,由于電梯小的原因,辛苦冷庫安裝師傅們,將庫板一塊塊扛上樓去,

一部分庫板已到場地,可以慢慢拼裝;

平裝底板要注意地面平整,這非常關鍵,如有物品及雜質,需想法辦法處理,保持底板基本平整,平衡溝槽保持無雜質,拼裝墻板凹凸槽要吻合,用偏心鉤要鎖牢,用力適中,不宜過大;

冷庫墻板拼裝完成,準備裝頂板,在裝頂板的同時也是需要先打上發泡劑,以庫華冷庫的密封性,制冷效果好。

在拼裝每一塊冷庫板,都不可忽視細節,必須打上發泡劑;

頂板與墻板之間偏心鉤還是一樣要鎖牢,這樣庫板拼裝就基本完成;

制冷設備安裝:要輕輕放置,每個底腳螺絲也要擰牢固定住,

頂部線槽安裝應注意幾點:

線槽安裝保持橫平豎直,電纜線整齊放置線槽內,線頭不宜過多(方便后期維護檢查),其之間的縫系適中庫華制冷好,管卡固定要牢靠;

總結:安裝冷庫板時,嚴格按照圖紙施工,彈線要準,直。分清庫板凸凹面的走向。(不分凸凹面的話可能會導致門無法安裝)每塊板在拼裝前一定打滿發泡劑。發泡劑不能少打。每個偏心鉤用內六角固定,安裝時確保每個連接口牢固,縫隙不能過大,保持水平,不能出現歪斜。

庫華公共微信號

掃一掃,關注庫華制冷新動態


庫華制冷成立于2013年,完工冷庫項目約3600個,冷庫建造全國可做,歡迎聯系我們,任何類型冷庫均可免費提供全套建造方案、設計方案和報價清單,電話:15355424256(微信同號)

相關文章